BUPA Architectures, cabinet architecte aux Chartrons, Bordeaux.

Help

Arrow Left : Move Left
Arrow Right : Move Right
Arrow Down : Move Down
Arrow Up : Move Up
 
P : PAUSE

pac-man

Lucio PANEPINTO
2015

Personnage  /  Surnom
- shadow
"blinky"
- speedy
"pinky"
- bashful
"inky"
- pokey
"clyde"
- help -
GitHub - Lucio PANEPINTO - Pac-Man

pac-man

1UP

0

Score

0
- help -

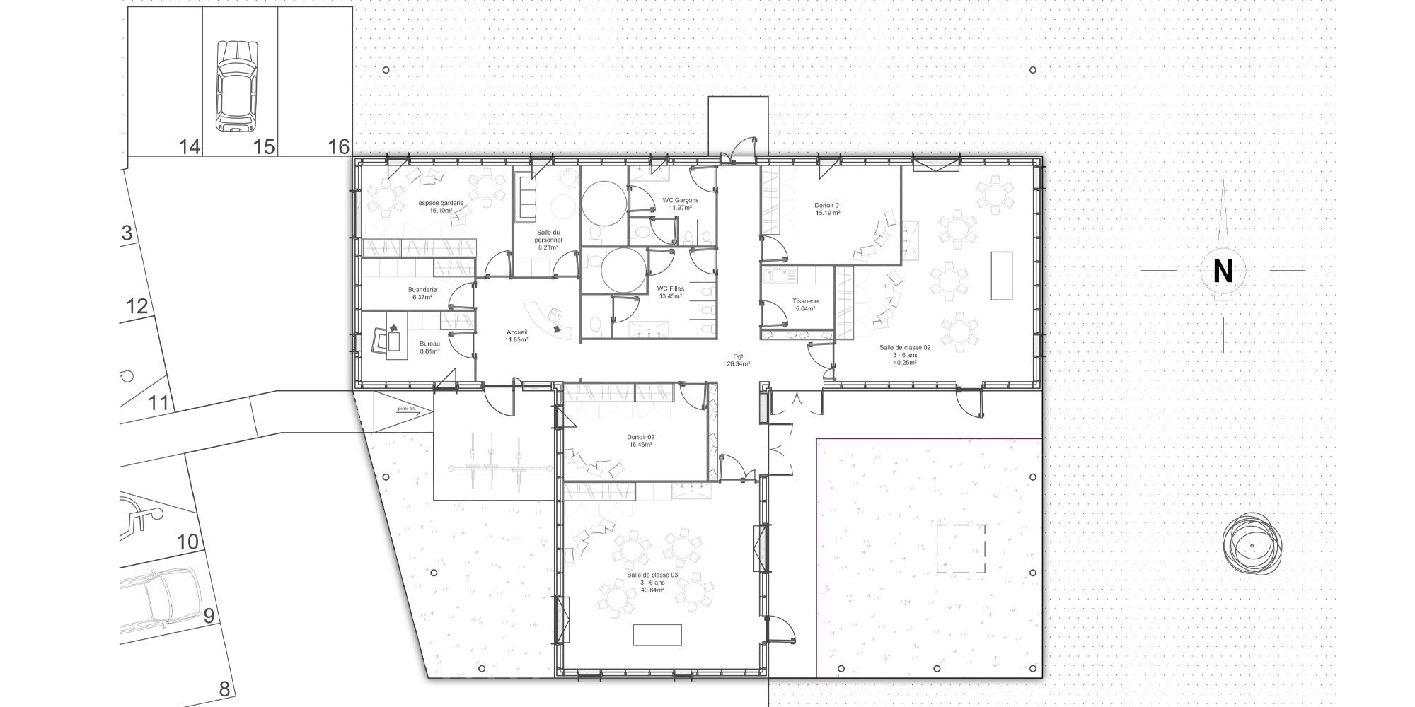
Ecole Montessori


Sadirac

Situation
En cours
Localisation
Sadirac (33660)
Maître d'ouvrage
Privé
Surface
220 m² (SDP)
Coût
270 000 €
Coût au m²
1 227,27 €/m²

Une construction neuve pour cette jolie petite école Montessori à Sadirac !

Implanté dans un écrin de verdure à quelques kilomètres de Bordeaux, l'établissement scolaire propose un enseignement alternatif pour les plus jeunes. En effet, l'objectif est le développement de l'enfant  par le travail des sens et à son rythme.

Le projet se nourrit de cette philosophie pour définir sa composition et son organisation : le travail à partir d'une trame régulière permet de générer un plan évolutif. Les salles de classes se trouvent dans les branches du T, tout en définissant des espaces extérieurs aux angles. Une salle de classe supplémentaire est facilement constructible sur la façade nord pour définir un plan en croix.

Le volume très simple est recouvert d'une toiture à 3 pentes, tourné à 30 degré de l'axe du volume. Cela permet de signifer des espaces plus ou moins intimes avec des hauteurs sous plafond variables, et de travailler sur des perceptions d'espaces différents.

Le travail des façades répond directement à l'environnement du projet : des ouvertures cadrant la vue sur les espaces naturels viennent ponctuer un bardage en bois rappelant les forêts environnantes.

 

 

 


tous
vidéos
images
plans
projet
chantier
réalisé