BUPA Architectures, cabinet architecte aux Chartrons, Bordeaux.

Help

Arrow Left : Move Left
Arrow Right : Move Right
Arrow Down : Move Down
Arrow Up : Move Up
 
P : PAUSE

pac-man

Lucio PANEPINTO
2015

Personnage  /  Surnom
- shadow
"blinky"
- speedy
"pinky"
- bashful
"inky"
- pokey
"clyde"
- help -
GitHub - Lucio PANEPINTO - Pac-Man

pac-man

1UP

0

Score

0
- help -

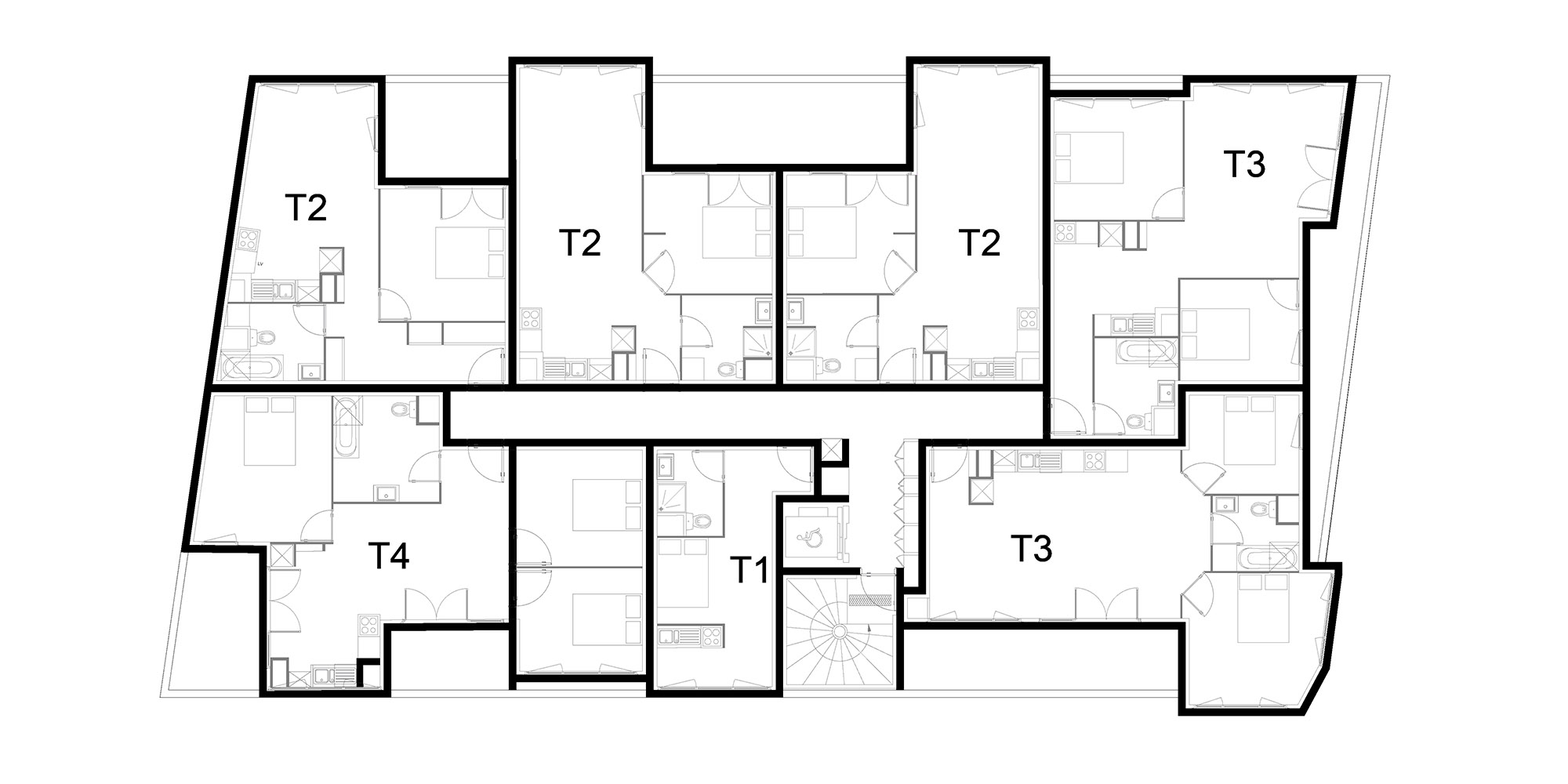
35 Logements


Cenon

Situation
En cours
Localisation
Cenon (33150)
Surface
1797 m² (SHAB)
Coût
2 177 534 €
Coût au m²
1 211,76 €/m²

À Cenon, à l’angle des rues Camille Pelletan et Saint Saens, se situe le projet de 35 logements. Le RDC est occupé par des places de stationnement. Ses façades sont conçues  par une maille de manière à décoller le bâtiment du sol et créer un lien avec la rue. Les étages, composés des logements, sont décalés les uns par rapport aux autres, de façon à générer des jeux de volumes. Ce contraste entre plein et vide et ce décalage d’un étage à un autre donne un dynamisme aux façades  et diminue ainsi l’impact visuel de l’immeuble pour mieux l’intégrer à son voisinage composé d’habitats pavillonnaires. Le dynamisme des façades est accentué par le contraste entre les trois matériaux : le bardage métallique blanc rythmé créant une continuité, le béton qui perce localement le bardage pour laisser apparaître des volumes en saillie ou en retrait, et le verre des garde-corps et des ouvertures. Les logements variés, allant du T1 au T4, sont conçus de manière à avoir tous un espace extérieur généré par le jeu de volumes.


tous
vidéos
images
plans
projet
chantier
réalisé