BUPA Architectures, cabinet architecte aux Chartrons, Bordeaux.

Help

Arrow Left : Move Left
Arrow Right : Move Right
Arrow Down : Move Down
Arrow Up : Move Up
 
P : PAUSE

pac-man

Lucio PANEPINTO
2015

Personnage  /  Surnom
- shadow
"blinky"
- speedy
"pinky"
- bashful
"inky"
- pokey
"clyde"
- help -
GitHub - Lucio PANEPINTO - Pac-Man

pac-man

1UP

0

Score

0
- help -

Ché MOI


Mérignac

Situation
Terminé
Année
2015
Localisation
Mérignac (33689)
Maître d'ouvrage
Agapes Aquitaine
Surface
204 m² (SHAB)
Coût
200 000 €
Coût au m²
980,39 €/m²

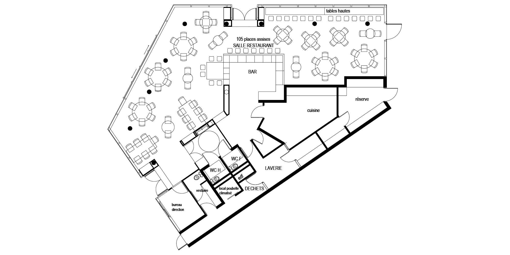
Édifié à partir d’un existant, le restaurant Ché Moi bénéficie d’un style tout à fait moderne grâce à des matériaux mat et transparents qui s’harmonisent entre eux et donnent naissance à un lieu contrasté avec l’extérieur.

Installé à l’angle d’une rue à grandes voies, l’établissement profite d’une large vue et fait office ainsi d’invitation pour autrui.

Ce qui fait la particularité de cet édifice sont les illustrations apportant fantaisie et convivialité à l’établissement de restauration. Réalisées par l’artiste JoFo, elles ont su s’inscrire parfaitement dans un cadre où la détente et les grands enfants trouvent leur place.

Cette collaboration aura eu pour résultat de donner naissance à un grand espace de joie et bonne humeur, sans que celui-ci ne perde en pertinence et sérieux. Ces illustrations invitent à pénétrer les murs de Ché Moi qui, additionnées à l’entrée en creux suscitent une certaine curiosité.

Le tout coiffé d’un bandeau noir où les courbes de JoFo viennent s’y dessiner, ce premier épouse justement les anciens bords arrondis qui se prêtaient à l’ancienne bâtisse.

L’intérieur n’a rien à y envier puisqu’il jouit lui aussi d’éléments graphiques de JoFo, mais à su intimiser l’espace grâce aux larges vitres teintées de rouge-orangé qui, sans scinder l’intérieur de l’extérieur permet à chacun des partis de profiter d’une identité propre à lui-même.

Le plafond entièrement illustré donne l’impression d’embrasser tout le lieu et confère de nouveau cet esprit de ludisme où chacun peut s’y reconnaître.

Lui-même séparé en deux espaces, l’intérieur a pour centre le bar qui a été défini selon l’espace et ce qu’il devait ensuite abriter : ajouté à l’existant, il sert de relai entre les espaces de gauche et de droite et grâce l’extension de son mur, a permis un sas servant d’intermédiaire entre les toilettes et la salle. Une alternative judicieuse de conserver le caractère intime de ces lieux. À cela s’ajoute «la table du chef» en annexe du bar, instaurant confiance et proximité avec le chef des lieux.

Ces deux espaces sont respectivement des tables rondes pointant directement sur l’extérieur par le biais des vitres rouges et à l’opposé de la terrasse extérieure, des chaises hautes  faisant dos au reste de l’établissement et qui malgré la proximité des éléments cités ci-avant, caractérisent l’espace concerné comme plus personnel et intimiste.


tous
vidéos
images
plans
projet
chantier
réalisé