BUPA Architectures, cabinet architecte aux Chartrons, Bordeaux.

Help

Arrow Left : Move Left
Arrow Right : Move Right
Arrow Down : Move Down
Arrow Up : Move Up
 
P : PAUSE

pac-man

Lucio PANEPINTO
2015

Personnage  /  Surnom
- shadow
"blinky"
- speedy
"pinky"
- bashful
"inky"
- pokey
"clyde"
- help -
GitHub - Lucio PANEPINTO - Pac-Man

pac-man

1UP

0

Score

0
- help -

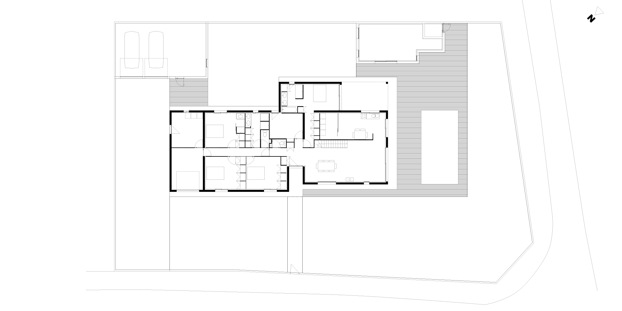
Maison ARS 00


Arsac

Situation
En cours
Localisation
Arsac (33460)
Maître d'ouvrage
Client Privé
Surface
260 m² (SHAB)
Coût
520 000 €
Coût au m²
2 000,00 €/m²

Un volume pur, reprenant la forme archétypale de la maison, se pose délicatement sur ce terrain verdoyant. La position désaxée du faitage et le jeu d'extrusion au coin du volume permettent de construire une architecture brute et épurée.


tous
vidéos
images
plans
projet
chantier
réalisé