BUPA Architectures, cabinet architecte aux Chartrons, Bordeaux.

Help

Arrow Left : Move Left
Arrow Right : Move Right
Arrow Down : Move Down
Arrow Up : Move Up
 
P : PAUSE

pac-man

Lucio PANEPINTO
2015

Personnage  /  Surnom
- shadow
"blinky"
- speedy
"pinky"
- bashful
"inky"
- pokey
"clyde"
- help -
GitHub - Lucio PANEPINTO - Pac-Man

pac-man

1UP

0

Score

0
- help -

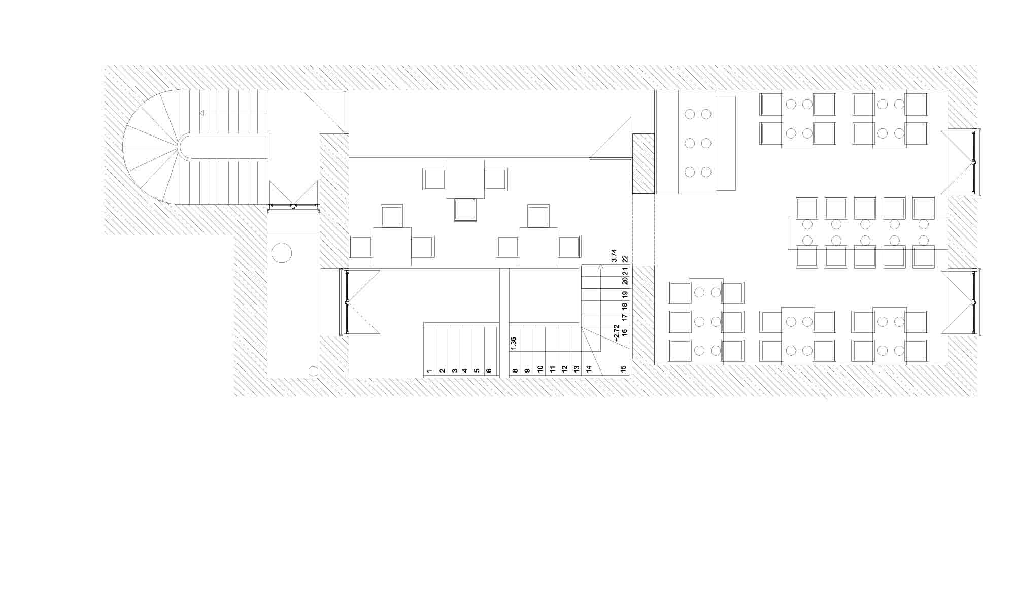
Upper Burger


Bordeaux

Situation
Terminé
Année
2013
Localisation
Bordeaux (33000)
Maître d'ouvrage
SARL Upper Bordeaux
Surface
124 m² (SHAB)
Coût
120 000 €
Coût au m²
967,74 €/m²

 

 

C’est entre deux appartements dans le centre de Bordeaux que s’est ouvert le restaurant de l’Upper Burger, dont le concept lui vient des États-Unis.

 

Un lieu où les couleurs rouge, blanc et noir nous rendent un intérieur classe et qui, avec un mobilier composé de chaises vintages créé un espace contrasté où les styles se mêlent.

 

Avec la cuisine comme premier aperçu à l’entrée, celle-là laisse place à un lieu étroit - de la même façon que les appartements du centre mais le large espace qu’elle occupe fausse la perception de l’intérieur et le rend ainsi plus spacieux.

L’établissement propose des plats copieux à travers un menu entièrement rédigé à la main et qui, additionné au style vintage des sièges et aux couleurs intérieures confère au restaurant  une ambiance chaude et conviviale.


tous
vidéos
images
plans
projet
chantier
réalisé