BUPA Architectures, cabinet architecte aux Chartrons, Bordeaux.

Help

Arrow Left : Move Left
Arrow Right : Move Right
Arrow Down : Move Down
Arrow Up : Move Up
 
P : PAUSE

pac-man

Lucio PANEPINTO
2015

Personnage  /  Surnom
- shadow
"blinky"
- speedy
"pinky"
- bashful
"inky"
- pokey
"clyde"
- help -
GitHub - Lucio PANEPINTO - Pac-Man

pac-man

1UP

0

Score

0
- help -

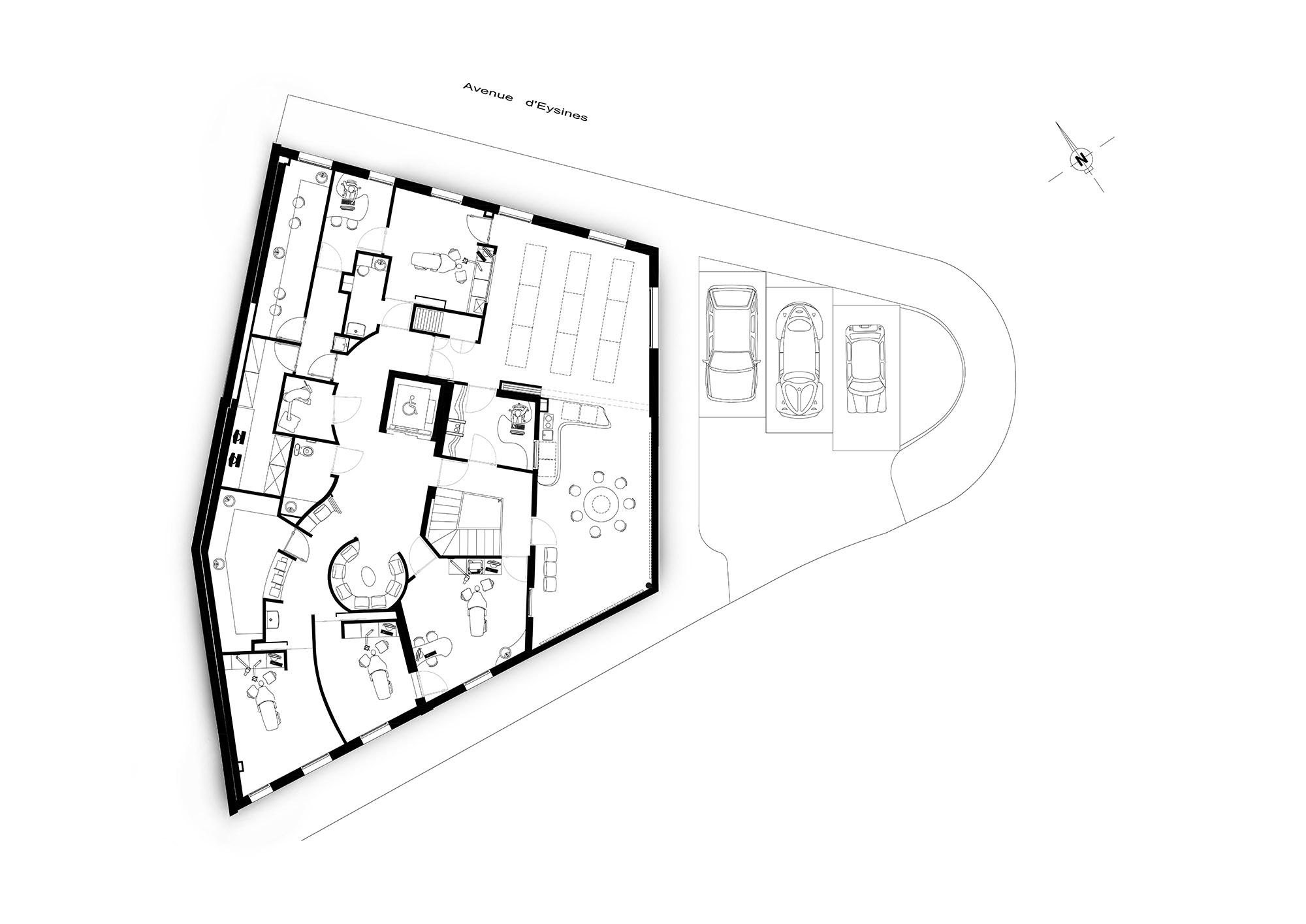
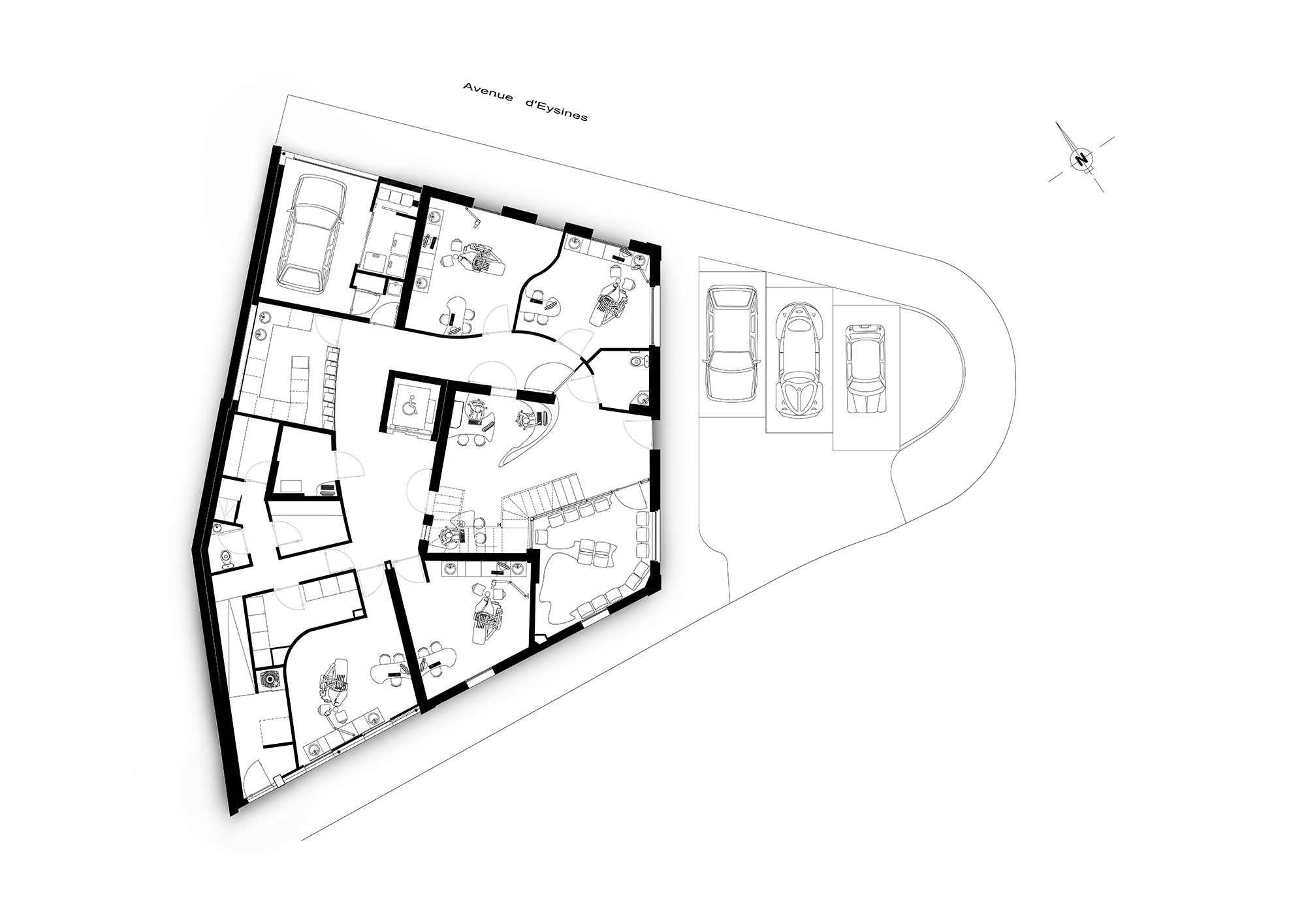
Clinique Dentaire


Bordeaux

Situation
Terminé
Année
2014
Localisation
Bordeaux (33000)
Maître d'ouvrage
SCI SEQUOIA
Surface
470 m² (SHAB)
Coût
961 454 €
Coût au m²
2 045,65 €/m²

Entre deux axes très passants dans un bâti à la typologie caractéristique de Bordeaux, vient se greffer un bâti à la fonction médicale. Le long de l’avenue d’Eysines, le bloc de corian se positionne dans la dent creuse entre les échoppes de pierre tandis que sur la rue Godard, le parti pris est plus radical. 

Le bloc percé et crénelé semble servir de contrefort à une verticale de pierre chapeautée d’une toiture à deux pentes. Au carrefour des deux axes, une horizontale blanche, contrastant avec la pierre traditionnelle, prend appui sur le bâti conservé, dont la racine de pierre accueille l’implant céramique. 
Ce projet de façades en corian montées sur ossature bois est une première mondiale. 
Dès la porte franchie, on découvre un univers intégralement blanc, presque clinique tout en restant accueillant. On sait qu’on pénètre dans un lieu de compétences, de technologie de pointe. 

L’acoustique y est feutrée. La lumière est partout mais, à l’image du reste, dosée, modulée, filtrée, tout autant que franche et claire. Le mobilier architectural épouse les courbes des cloisons. Chaque élément participe à l’équilibre de l’ensemble. 

A l’étage, une salle dédiée donne sur le carrefour. Sa verrière traditionnelle avec des stores à lamelles induit un dialogue varié avec le parc. Cet espace d’accueil repose autant qu’il forme puisque la salle de chirurgie est visible au travers d’une baie et permet à des étudiants d’assister à des opérations chirurgicales.

Dans la pièce de soin, le placement du mobilier chirurgical ainsi que des ouvertures a toute son importance. Ces éléments sont posés de manière à offrir aux patients une vue imprenable sur le ciel à travers des fenêtres inclinées. 

L’intervention est volontairement monochrome et travaille sur une palette de textures qui n’utilise que la lumière pour se démarquer subtilement les unes des autres. L’espace devient alors vibrant au gré des rayons de lumière. 

Une seule concession à la couleur, une fresque murale de l’artiste Jofo. 


tous
vidéos
images
plans
projet
chantier
réalisé