BUPA Architectures, cabinet architecte aux Chartrons, Bordeaux.

Help

Arrow Left : Move Left
Arrow Right : Move Right
Arrow Down : Move Down
Arrow Up : Move Up
 
P : PAUSE

pac-man

Lucio PANEPINTO
2015

Personnage  /  Surnom
- shadow
"blinky"
- speedy
"pinky"
- bashful
"inky"
- pokey
"clyde"
- help -
GitHub - Lucio PANEPINTO - Pac-Man

pac-man

1UP

0

Score

0
- help -

Extension d'une échoppe bordelaise


Bordeaux

Situation
Terminé
Année
2013
Localisation
Bordeaux (33000)
Maître d'ouvrage
Client Privé
Surface
160 m² (SDP)
Coût
150 000 €
Coût au m²
937,50 €/m²

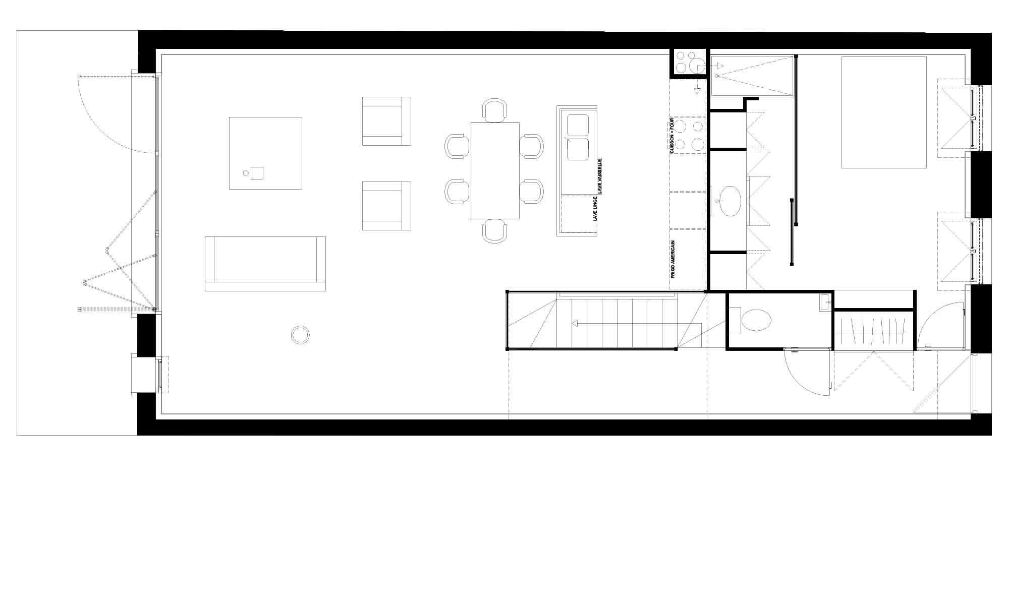
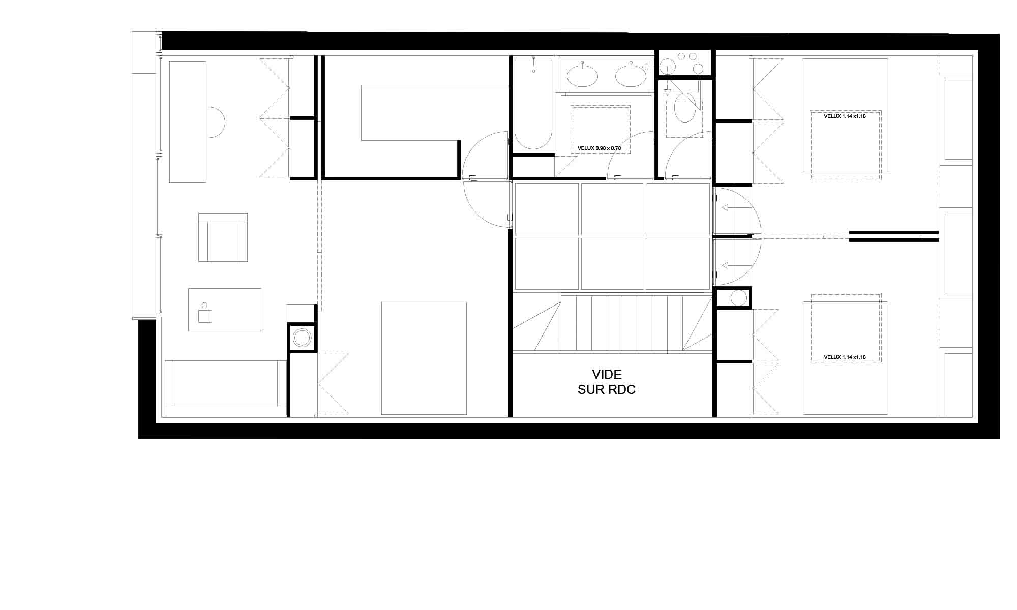
Suite à la demande du propriétaire, une extension a été réalisée sur l’ échoppe qui s’adosse à une construction en pierre. Pour cette extension, le choix s’est porté sur une intervention légère et transparente. Un vide sur RDC a été percé au centre de la construction pour apporter de la lumière. Sa toiture transparente en continuité de la toiture existante en tuile en double pente permet de le transformer en un puits de lumière. Vers le jardin, un cube transparent vient s’imbriquer au mur en pierre. Ainsi, malgré sa forme en longueur et l’opacité de la pierre, cette échoppe beigne dans une lumière naturelle. Ce contraste entre la pierre et le verre travaille sur la dualité des matériaux afin de générer un équilibre entre la partie existante et l’excroissance ajoutée.


tous
vidéos
images
plans
projet
chantier
réalisé