| Arrow Left : | Move Left |
| Arrow Right : | Move Right |
| Arrow Down : | Move Down |
| Arrow Up : | Move Up |
| P : | PAUSE |
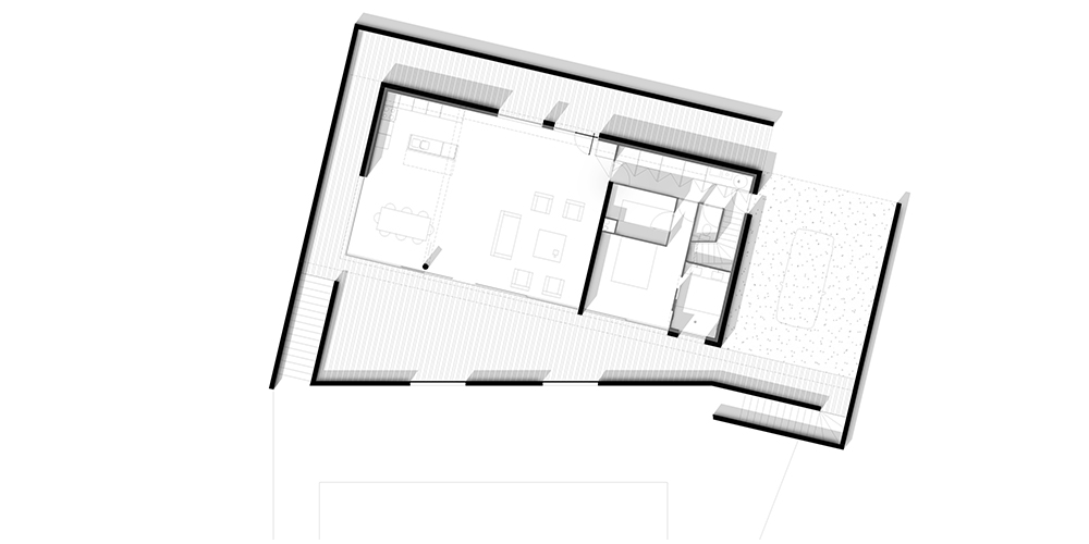
L’habitation de Camblanes-et-Meynac a la particularité d’avoir été bâtie sur un terrain en pente, entrainant la construction d’un projet en «escalier». En effet, le RDC abrite les pièces de vie et l’entrée principale, tandis que le sous-sol abrite les chambres. Celles-ci sont directement connectées avec l’extérieur, offrant une vue remarquable sur la nature environnante.
Le désaxement des deux niveaux permet aussi de créer une large terrasse au niveau du RDC, donnant la possiblité aux habitants de profiter d’un lieu extérieur. Le bois, utilisé pour le revêtement extérieur, permet au bâtiment de s’intégrer parfaitement au contexte et lui donne la caractéristique d’un lieu chaleureux et accueillant. Son bardage vertical s’oppose au béton, utilisé pour souligner l’horizontalité ainsi que les différents accès à l’habitation et aux espaces extérieurs.